|
上海欢畅环境设备有限公司
联系人:李经理
手机:15221724147
电话:400-0868 358
邮箱:shhuanchang@126.com
地址:上海市嘉定区大治路164弄2号楼304室
|
|
|
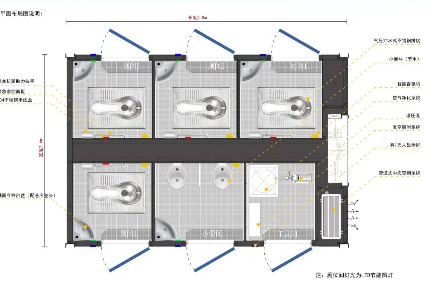
豪华型不锈钢气压六厕位
结构框架
全钢结构,船舶标准防腐,与拉臂车底盘匹配
内外装饰
全不锈钢;铝塑板|优质防火板;地坪不锈钢花纹板
防护设施
全金属翻踏;助力扶手;应急求助系统;提示标识
自动控制
自动冲洗、自动照明、自动语音播放、LED有无人显示屏
电源动力
小型车载发电机/外接电源即时航空插头 电压220V功率2.5KW
节水系统
节水型厕具冲洗系统;专利技术;每次冲水0.7升
厕具装置
不锈钢一体式;不锈钢花纹板面板;多重密封防臭
供水系统
De32水源接口/标准消防接头;全不锈钢储水箱 水箱容量2000L
排水系统
全钢结构防腐集便箱;密封防臭吸污口;备用排污口,粪箱容量3000L
洁具选配
小便间选配:进口免冲洗小便器/不锈钢小便槽(感应冲洗)
使用容量
每次补水清污周期:气压厕所;额定500人次;高达1000人次。
厕位数量
左厕:1男女公共厕位+3小便斗;右厕:2男女公共厕位
外形尺寸
厕所部分尺寸:长3800mm*宽2600mm*高3200mm
运载尺寸 长5800mm*宽2500mm*高4200mm







